2025年10月27日更新
松合地区市民館の所管課が変更になりました。
このたび、松合地区市民館の所管が不知火支所から生涯学習課へ変更になりました。
それに伴い、施設に関するお問い合わせ先や手続きは、生涯学習課が担当します。
今後とも、円滑な施設運営にご理解とご協力をお願いいたします。
宇城市松合地区市民館とは
市民館は、地域の交流・学習・文化活動の拠点として、市民の皆さまが気軽に利用できる公共施設です。
自治会活動や会議、サークル活動、趣味文化講座など、さまざまな目的でご利用いただけます。
基本情報
所在地 : 郵便番号869-3472 宇城市不知火町松合168番地1
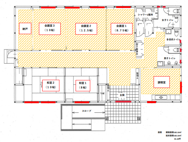
(注)会議室1、2、3、和室1、和室2、調理室があります。
利用申込
空き状況の確認・申請手続き
申請期間
利用日の3カ月前から3日前まで
ただし、市外居住者の利用申請については2カ月前から3日前まで
使用料
利用予定日の3日前までにお願いします。
納付期限は利用日の3日前までです。
宇城市外居住者の方が利用される場合は、上記使用料の2倍の金額になります。ただし、冷暖房は除きます。
会議室1・2・3
- 施設使用料 1時間当たり100円
- 冷暖房料 1時間当たり100円
- 全室使用料 1時間当たり200円
和室1・2
- 施設使用料 1時間当たり100円
- 冷暖房料 1時間当たり100円
調理室
- 施設使用料 1時間当たり100円
- 冷暖房料 1時間当たり100円
変更・キャンセル
利用予定日の3日前までにお願いします。
ただし、3日前が休館日にあたる場合はその前開館日まで
変更の場合は変更申請が必要です。窓口で手続きしてください。
前納された使用料は原則として返金できません。あらかじめご了承ください。
問い合わせ
不知火防災拠点センター
電話番号 0964-32-0277
この記事に関する地図

